Bullerskärm E22 – fibercement och träraster - Swisspearl
whater-ritning-1920x1080whater-ritning-1920x1080
Beprövad användning av fibercement i infrastruktur

Bullerskärm E22

E22 TPL Lund Södra

2026-01-07 Anna Ranow

Robust och långsiktig del av bullerskyddet

Utvecklingen av cirkulära och designbara bullerskärmar bygger på praktisk erfarenhet från verkliga infrastrukturprojekt. Ett tydligt exempel är utbyggnaden av E22, där fibercementskivor används som en robust och långsiktig del av bullerskyddet.

Denna bullerskärm ingår inte i innovationsprojektet Cirkulära bullerskärmar, men utgör en viktig referens som visar hur fibercement redan idag används i bullerskärmar inom projekt med höga klimat- och hållbarhetsambitioner. Erfarenheterna härifrån är en av flera utgångspunkter för det pågående innovationsarbetet. 

Bullerskärm – funktion i fokus, gestaltning som tillägg

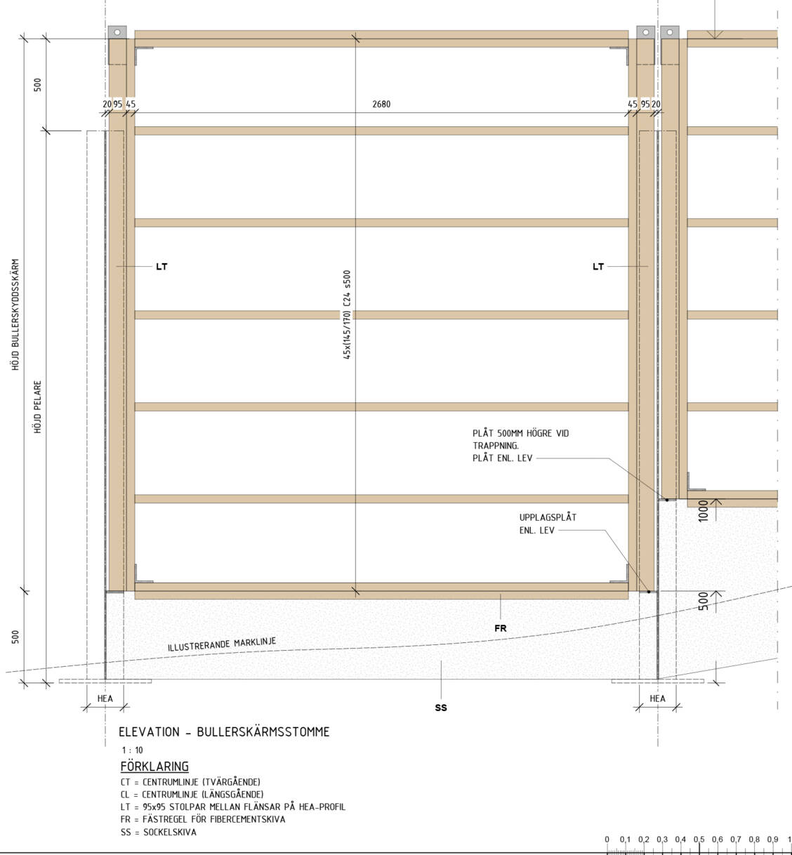
Bullerskärmen på den första etappen av E22-projektet är den som visas här. Lösningen bygger på fibercementskivor från Swisspearl Construction, som fungerar som tåliga och långlivade funktionsskivor i bullerskyddet.

De cementgrå skivorna har i detta fall medvetet dolts bakom ett dekorativt träraster. Trärastret fyller flera funktioner:

  • ger ett mjukare visuellt uttryck i landskapet
  • bidrar till att göra bullerskärmen mindre attraktiv för klotter och åverkan
  • skapar ett extra lager utan att påverka den tekniska funktionen

Träraster som komplement – inte som krav

Erfarenheten från E22 visar att träraster kan användas strategiskt:

som huvudsakligt dekorativt lager framför neutrala funktionsskivor

eller som kompletterande inslag i bullerskärmar där fibercementskivor i färg eller med mönstersättning redan står för gestaltningen

I det senare fallet behöver rastret inte vara lika tätt, utan kan användas selektivt för att skapa variation, skuggspel eller skydd i särskilt utsatta delar av anläggningen.

E22_PrefabNorden1
Swisspearl Construction tål att motfyllas och är därför vanlig som tätning mot mark mellan fundament. Här är ena sidan klädd på kasetterna så att hela skärmen är täckt med denna skiva.
E22_PrefabNorden2
E22_PrefabNorden3

Industriell leverans och samverkan

Bullerskärmslösningen har levererats med hjälp av prefabricerad kompetens från Prefab i Norden, som har lång erfarenhet av industriella element i trä, stål och betong för bygg- och infrastrukturprojekt.

👉 Läs mer om Prefab i Norden:
https://www.prefabinorden.se/

Projektet har även genomförts i nära dialog med Derome, vars specialister inom infrastruktur bidrar med marknads- och tillämpningskunskap.

Kontakt – Derome Infrastruktur
Dejan Serini, Key Account Manager | Infrastruktur & Anläggning  tel 040 625 85 04

Fakta

Tid: 2025

Byggherre: Trafikverket 

Totalentreprenör: Peab Anläggning

Återförsäljare: Derome | Infrastruktur & Anläggning

Tillverkare och konstruktion: Prefab i Norden | ELEMENTUM  ECO AB

Akustikmätning: Fås på begäran